春节假期是人们外出旅游、走亲访友的重要时间。自驾出行,您最先想到的会是什么,路况、车况,还是沿途风景与旅途终点的亲朋?
现代社会,人们使用地图的情形随处可见。开车导航、边防巡逻、外卖下单、搜索门店……从生产到生活,从军事到民用,从线上到线下,地图必不可少。地图为人们提供着各种便捷的服务,它已不仅是简单的地理坐标集合,更是一种认识世界、表达世界的方式。
历史上的地图是如何产生的?目前已知的中国最早的地图在哪里?今天,将为您讲述鲜为人知的原始地图故事。
01
大汶口文化深处发现神秘符号
中国地图文化馆展示着一幅刻在陶尊上的原始地图,陶尊在山东莒县陵阳出土,年代约公元前4300年—公元前2500年,属于新石器时代的大汶口文化时期。这件陶尊叫“日月山形图灰陶尊”,高60厘米,口径29.5厘米。陶尊上刻有日、月、山峰组成的图画,可看作是用图画表达地理现象。这是目前已发现的中国最早的原始地图。

▲山东莒县陵阳出土陶尊上发现的目前中国最早的原始地图。
中国地图出版社专家王阳认为,“日月山形图灰陶尊”上刻有反映当地地理环境的日、月、山峰图象,说明初始的原始地图直接源于地理图画。从本质上说,用图画形式记录的简单地理图(景)象,就是原始地图。
地图起源于人类的生活、生产活动,是人类在认识自然等实践活动中对客观环境认知的图形化、符号化表达,是反映自然和社会现象的形象符号模型。
在文字出现之前,早期人类已经开始在地面、石板或器物上描画简单的图形,用石块、贝壳等来模拟所见自然环境的形状、大小、方向或相对位置等,为人们外出狩猎或劳作提供指引。
当人类历史进入新石器时代以后,由于物质生活的改善和人类思维的发展,开始出现记录周围环境和生活情景的原始图画。原始图画又随着社会经济文化的演进而发展为三个相互联系又各自独立的分支,即绘画艺术、象形文字和原始地图。

▲良渚刻符黑陶罐,其肩部和上腹部有12个刻画符号,包括山、形似羽毛的箭、网状物,还有动物。现藏于良渚博物院。
02
解读原始地图背后的神秘符号
山东莒县陵阳河遗址出土的大汶口文化晚期的陶尊上出现刻画日月山形符号,不是偶然出现的,与此类似的符号,在山东诸城前寨遗址和安徽蒙城尉迟寺遗址、湖北石家河文化的肖家屋脊遗址,亦有发现。这些不同地区出土的类似的陶尊和符号,说明各地人群之间存在文化的交往、交流与交融。
1973年,考古工作者在山东诸城前寨遗址发现了一块大陶缸残片,高50厘米、宽29厘米、厚5.5厘米,上部已残缺,下部呈五峰山形,上有一弯曲线,在山峰和弯曲线中间都涂有红色,与大汶口文化“日月山”陶符类似。

▲五峰山形陶片及其拓片(右)。(图片来源:任日新.山东诸城县前寨遗址调查[J].文物,1974(01):75.)
中国考古博物馆陈列着出土于安徽蒙城尉迟寺遗址的大口陶尊,同属于大汶口文化晚期,大口陶尊的腹上部刻画的符号,从上至下亦为“日、月、山”形。

▲安徽蒙城尉迟寺新石器时代遗址出土的大口陶尊,现藏于中国考古博物馆。
1990年以来,在长江中游的史前聚落群遗址中,属于石家河文化晚期的肖家屋脊遗址发现了大量瓮棺葬。在出土的随葬品上刻画有“◁○ ▷”形状,一个三角符号代表阴,另一个三角符号代表阳,它们中间的圆形表示月亮或太阳。这个组合方法,与大汶口文化的“日、月、山”的组合方法一致。

▲石家河文化的肖家屋脊遗址出土随葬品上刻画的“◁○ ▷”形状符号。
中国国家博物馆研究员翁淮南认为,对于“日月山形图灰陶尊”图案,太阳之下的月牙左高右低,呈下弦月态势,构图精心为之,反映了当时居住的环境情形。
太阳与月亮,呈现了原始地图的时间维度;连绵山峰,呈现了其空间维度。五座山峰呈对称分布,最高峰为轴心,将太阳和月亮联系在一起,也将天空和大地沟通起来,能沟通天地的,应为首领或巫人。

▲牛河梁遗址博物馆,远古先民祭祀场景再现。(图片来源:视觉中国)
值得关注的是,古地图表达了“地中”之意,即天有中心,大地也应有中心。事实上,要想登上盟主之位,必须占有“天下之中”的地理,并有“建木”(传说中沟通天地和人神的圣树)生长其中。古地图传达了王者之气。
整个构图,天圆地方,又蕴含着“天人合一”的理念。古地图中的太阳元素,而同属新石器时代的上山文化和跨湖桥文化中也出现了太阳纹的彩陶,可能与太阳崇拜有关。

▲跨湖桥文化遗址出土的彩陶器上多见模仿太阳的圆圈、放射线等组合图案,是中国南方地区所见最早形式的太阳崇拜。(图片来源:杭州网)
这几件物证均出自黄河中下游,也是文化意义上的“中原”。连绵的山,也似连绵的圣树。经过几千年岁月沉淀,“天下之中”便生成了“中国”的概念。
如学者苏秉琦所说:“所谓中原也者,无非也像美洲新大陆,人来自四面八方,中原的古文化也是吸收了四面八方的优秀文化因素会合而成,不全是土生土长一根独苗开出的花、结出的果。”
事实上,史料记载的五帝传说,便具有了领土和地理方位意识,“普天之下,莫非王土,率土之滨,莫非王臣”。这是夏商周三代王者的理想,秦的统一实现了这一理想。可以说,原始地图见证了中国“大一统”的历史渊源。
03
地图是中华民族连续性的物证
中国地图从原始走到了现在,从古代的荆轲献图刺秦王,到现在边境划界,地图都是重要的道具或依据,起着国家版图的象征作用。
据《世本八种》记载,黄帝同蚩尤打仗,曾使用了表示“地形物象”的地图。春秋战国时期,出于军事、政治、丧葬以及社会经济的需要,地图品种也随之增多,《周礼》中曾有十几处记载。如“司徒所掌之图”(土地和矿产用的地图)、“冢宰之图”(表示疆域户籍的行政区划图)、“司马之图”(全国地图)和“宗伯之图”(表示墓地范围地图)等。这些地图由于历史久远都已失传。
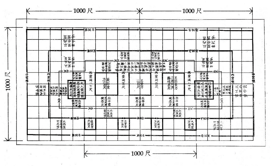
1977年,考古人员在河北平山县战国中山王墓葬发掘出镌刻在铜版上的“兆域图”。此图绘制于公元前4世纪,图上标明了宫垣及墓葬所在地点,建筑物按照一定比例尺绘制,标注了各部分名称大小位置和它们之间的相互关系,是我国目前发现的最早的平面建筑规划图,“兆域图”证实了《周礼》记载的可信。

▲河北平山县战国中山王墓出土的“兆域图”。

▲中山王“兆域图”隐含了“百尺为形、千尺为势”的“平格”模数方法。(图片来源:王其亨、何捷《西汉上林苑的苑中苑》《建筑师》1996年总第72期 )
在湖南长沙马王堆三号汉墓出土了西汉时期诸侯国长沙国的南部地形图,帛底彩绘,图上标注了该区域的河流水系、山脉分布和军事关隘等信息,山体轮廓和走向采用了闭合曲线中填绘细平行线的方法,科学合理、绘制精良,地图大部分接近于现在的实测地图,初步具备了近现代地图特征,表明2000多年前的中国地图测绘技术即处于先进水平。

▲湖南长沙马王堆三号汉墓《长沙国南部地形图》是迄今为止发现最早、编制最准确的军事地图。(图片来源:湖南省博物馆网站)
晋代地图学家裴秀在总结前人制图经验的基础上,创立了著名的地图绘制理论“制图六体”:分率、准望、道里、高下、方邪、迂直。分率即比例尺,准望即方位,道里即距离,高下即相对高度,方邪即地面坡度起伏,迂直即实地起伏距离同平面上相应距离的核算。
裴秀“制图六体”奠定了中国古代制图的理论基础,采用的“计里画方”方法影响了我国西晋至明末1400年间绘制地图的格局。其代表作《禹贡地域图》18篇和《地形方丈图》也具有历史沿革地图的性质。
中国传统地图的绘制理论和方法得到继承和发展,先后出现了贾耽、沈括、朱思本、罗洪先等地图学家,地图的品种、数量也得到很大的发展。
唐代贾耽编制了名为《海内华夷图》的地图,该图宽三丈、高三丈三尺,是魏晋以来第一大图。
宋代对地图一向很重视,《淳化天下图》是北宋统一不久即编绘成的第一幅规模巨大的全国总舆图。1137 年,刻于石碑上的南宋《禹迹图》上刻有方格,是目前看到的最早的“计里画方”地图和现存最早带有制图网格的地图。

▲南宋《禹迹图》石碑。
绘制于郑和第七次下西洋之前的《郑和航海图》,是世界上现存最早的航海图集,共有地图 40 幅,标注了印度洋、太平洋甚至远及大西洋的航海路线、里程、海流、水深、礁石、停泊港口,以及天文气象资料,具有很高的实用和学术价值,更是一份科学文化遗产。
明代喻时绘制的《古今形胜之图》,描绘了明朝的疆域和兵要形胜之地,也展现了中国人眼中的东亚和世界的概念。真迹现藏西班牙塞维利亚市西印度群岛总档案馆,图上有西班牙文注释,反映了十六世纪中外文化交流的历史,是中西地图交流的经典代表,为目前有据可考之最早传入欧洲的中国全图,亦为欧洲汉学研究起源之文献。

▲明朝嘉靖年间喻时绘制《古今形胜之图》。

▲明陈组绶撰《皇明职方南京十三省地图表》,崇祯九年刻本,国家图书馆出版社2009年出版。

▲明洪武《大明混一图》,绢质彩绘,纵347厘米,横453厘米,现藏北京中国第一历史档案馆。(图片来源:李军:图形作为知识——十幅世界地图的跨文化旅行,《美术研究》2018年第2期)
清朝是我国历史上地图制图发展较快的时期。康熙聘请了一批西方传教士,进行了全国性的大规模的地理经纬度和全国舆图的测绘,采用天文测量和三角测量相结合的形式进行。著名的《皇舆全览图》,在我国测绘史上具有重要意义,奠定了我国近代地图编制的基础。

▲摘自汪前进、刘若芳整理出版的《清廷三大实测全图集》中的康熙《皇舆全览图》。(图片来源:中新网)
(请横屏观看)

▲意大利传教士利玛窦与明朝官员李之藻合作完成的《坤舆万国全图》 是国内现存最早的、唯一的据刻本摹绘的世界地图。现藏于南京博物院。(图片来源:央视新闻)

▲《大清万年一统天下全图》是清代乾隆年间民间私人刻印的一幅全国地图。现藏于国家图书馆。(图片来源:国家图书馆微博)
清末地理学家魏源编制的《海国图志》,包括半球图、各大洲和各国地图,采用经纬度控制法,是中国地图制图学史上一部关于世界地图集方面开创性的著作。

▲清代魏源编制《海国图志》。(图片来源:国家海洋博物馆)
至现代,地图编制更加规范化,计算机辅助制图和遥感资料制图等新兴技术手段迅速兴起,国际合作不断深化,专题地图与地图集大量涌现。
地图也与人类文明相伴相生。西方陆续有埃拉托色尼用经纬线绘制的世界地图、托勒密用球面投影和圆锥投影绘制的世界地图,墨卡托助力地理大发现的世界地图、18世纪的实测地形图,这些地图同中国古代经典地图一起,成为人类文明的瑰宝。

▲1486年《托勒密世界地图》,在内容上复原自公元2世纪托勒密的《地理学指南》。(图片来源:李军:图形作为知识——十幅世界地图的跨文化旅行,《美术研究》2018年第2期)
从原始地图到现代地图,中国地图是中华文明5000年绵延发展的物证,凸显了中华文明的连续性。
(本文图片未注明出处者,均为作者拍摄或扫描。)
(作者简介:杨超,中国国家博物馆馆员)
来源:道中华
网址:https://mp.weixin.qq.com/s/-hxVHX3IquhkrDr8u-guMw